400-071-8717
首页
搜房
伦敦·德威村 Soane Place
户型图
样板间
外立面
伦敦·德威村 Soane Place
£65万镑起
总价
交房类型
51-235㎡
面积区间
Soane Place, Gilkes Crescent, Dulwich, London SE21
查看地图
周边学校
坎伯韦尔艺术学院 Camberwell College of Arts
伦敦大学金史密斯学院 Goldsmith, University of London
哈里斯学院 Harris Academy Bermondsey
圣救主堂和圣奥拉夫英国教会学校 St Saviour's and St Olave's Church of England School
伦敦传媒学院 London College of Communication
项目就坐落于Dulwich Village这个绿意盎然,景色宜人的社区,非常适合家庭居住。附近的德威画廊、公园、运动俱乐部都为家庭提供绝佳的活动场地。
楼盘内容
项目亮点
项目配套
教育资源
交通情况

介绍的项目就坐落于伦敦东南区的富人区,非常适合家庭居住,附近更有步行可达的顶级私校德威学院


Dulwich Village是一个绿意盎然,景色宜人的社区,是伦敦南部公认的绿色植物和传统建筑的绿洲。


项目附近20分钟步行距离内有7所私校。此地区在爱德华时期成立了众多学校,包括著名的德威学院。


地区超市、餐厅和咖啡馆等应有尽有。德威画廊、公园、运动俱乐部都为家庭提供绝佳的活动场地。


项目的交通十分便利,距离最近火车站North Dulwich 步行即可到达。



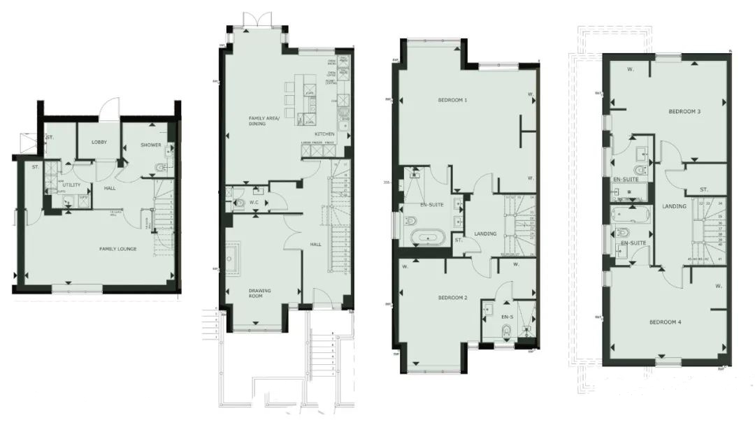
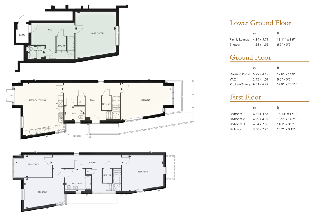
Soane Place项目,内部提供地下停车位。室内设计清新淡雅,以简洁的白色为主色调,点缀安静的蓝色和生机的植物绿荫,光线充足,舒适宜人。同时室内设有 宽敞的观影室,是休闲放松的好选择。卧室空间开敞,配合原木色地板和地毯,营造出温馨静谧的居住感。屋顶还设有独享的露台空间,可根据自我喜好进行个性设计。



德威村辖区内有许多地方可以探索,其中以其著名的艺术画廊和开放的绿色空间,拥有花园、划船湖和凉亭,是周末享受阳光的好去处。

附近的达利奇体育俱乐部还提供板球、槌球、曲棍球、壁球或网球 这是英式传统体育的最佳代表,十分方便居民使用。


Soane Place所处的社区有着田园般的生活,其周围有着令人向往的教育资源。

德威村拥有多所被评为Outstanding的学校,年龄跨度从4岁到18岁,基本上贯彻了一个孩子从幼儿园到18岁的教育过程。

其中著名的私校德威公学位于项目附近,步行就可以到达。德威学院是著名的贵族男校,在英国私立、公立学校中排名27,教育水平值得信赖。



距离Soane Place项目最近的车站是North Dulwich站,从这里乘坐火车出发约短时间内 便可到达London Bridge。

从项目驾车出发,到达伦敦繁华中心威斯敏斯特也只需要两刻钟左右的时间。




了解更多
楼盘简介
产权
别墅永久产权,公寓999年
位置
Southwark
总户数
地址
Soane Place, Gilkes Crescent, Dulwich, London SE21
开发商
Aquinna Homes
物业费
请咨询顾问
交房时间
2023 3Q
近期活动推荐
更多»
英国房产投资分享会(近期活动合集)
立即报名»
知识问答
更多»
租房
租房入住后还需要检查什么文件?
展开»
楼盘
获取英国毕业生签证有什么资格吗?
展开»
楼盘
如果我的房子有贷款,可以挂售吗?贷款又该如何处理?
展开»
楼盘
在房本上写孩子的名字是否可以避税?
展开»
楼盘
选房的时候要准备多少资金啊?
展开»
楼盘地图
位置Soane Place, Gilkes Crescent, Dulwich, London SE21
公交
学校
购物
餐饮
Underground-Oval, Kennington Park Road, 伦敦, SE11 4, 英国
0.04米
Underground-Brixton, Brixton Road, 伦敦, SW9 7AE, 英国
0.03米
Camberwell New Road Stop N, 328 Kennington Park Road, 伦敦, SE11 4PP, 英国
0.04米
Bird in Bush Road (Stop R), 55 Peckham Park Road, 伦敦, SE15 6TU, 英国
0.03米
Commercial Way Peckham Stop WB, 伦敦, SE15 2, 英国
0.04米
St George's Way (Stop U), Sumner Road, 伦敦, SE15 6, 英国
0.03米
Caroline Gardens (Stop SC), Asylum Road, 伦敦, SE15 2, 英国
0.04米
Commercial Way Peckham Hill (Stop P), 161 Commercial Way, 伦敦, SE15 1AU, 英国
0.03米
Old Kent Road Ilderton Road Stop Wa, 855 Old Kent Road, 伦敦, SE15 1, 英国
0.04米
Clifton Way, 113 Asylum Road, 伦敦, SE15 2LB, 英国
0.04米
Kings College SCH. Med. Dentistry, Bessemer Road, 伦敦, SE5 9, 英国
0.02米
Southwark Adult Education, Alpha Street, 伦敦, SE15 4, 英国
0.02米
Kingdom Life College, 286 Camberwell Road, 伦敦, SE5 0, 英国
0.02米
King's College London, De Crespigny Park, 伦敦, SE5 8, 英国
0.02米
Institute of Psychiatry, De Crespigny Park, 伦敦, SE5 8, 英国
0.02米
SCBS College, 403 Brixton Road, 伦敦, SW9 7DG, 英国
0.03米
Orchard Hill College, 47 Tulse Hill, 伦敦, SW2 2, 英国
0.03米
Photographic Training Academy, Coldharbour Lane, 伦敦, SW9 8LF, 英国
0.03米
Sia Academy, 42 Holmdene Avenue, 伦敦, SE24 9LF, 英国
0.01米
Dulwich College, Dulwich Common, 伦敦, SE21 7, 英国
0.01米
Kings College Hall of Residence, 10 Champion Hill, 伦敦, SE5 8AN, 英国
0.01米
Community Education, 84 Kirkdale, 伦敦, SE26 4, 英国
0.03米
South London Business College, 137 Kirkdale, 伦敦, SE26 4BB, 英国
0.03米
Brockley Ideal College, 3 Weaver Walk, 伦敦, SE27 0AH, 英国
0.03米
London College of Science, 291 Kirkdale, 伦敦, SE26 4NL, 英国
0.04米
Ashmole Primary School, Ashmole Place, 伦敦, SW8 1NT, 英国
0.04米
Reay Primary School, Hackford Road, 伦敦, SW9 0EN, 英国
0.04米
Durand Primary School, Hackford Road, 伦敦, SW9 0, 英国
0.04米
Haymerle Special School, Haymerle Road, 伦敦, SE15 6, 英国
0.03米
St Francis Catholic Primary School, Commercial Way, 伦敦, SE15 1RQ, 英国
0.03米
Camelot Primary School, 伦敦, SE15 1QP, 英国
0.04米
Leyf - Burgess Park Pre-School, Glengall Road, 伦敦, SE15 6RR, 英国
0.03米
Southwark Inclusive Learning Service, 2 Davey Street, 伦敦, SE15 6LF, 英国
0.03米
Pilgrims Way Primary School, Tustin Estate, 伦敦, SE15 1, 英国
0.04米
Peckham Park Primary School, Marmont Road, 伦敦, SE15 1, 英国
0.03米
Gloucester Primary School, Daniel Gardens, 伦敦, SE15 6, 英国
0.03米
Neil Gwynn Nursery School, Meeting House Lane, 伦敦, SE15 2TT, 英国
0.03米
John Donne Primary School, Woods Road, 伦敦, SE15 2SW, 英国
0.03米
Zoom Test X About X, 1-3 Brixton Road, 伦敦, SW9 6, 英国
0.04米
28 Brixton Road Stockwell 伦敦 SW9 6 英国
0.04米
1-3 Brixton Road Stockwell 伦敦 SW9 6 英国
0.04米
14 Brixton Road Stockwell 伦敦 SW9 6 英国
0.04米
58 Brixton Road Stockwell 伦敦 SW9 6 英国
0.04米
Hanover Gardens Kennington 伦敦 SE11 5 英国
0.04米
76 Bolton Crescent Camberwell 伦敦 SE5 0 英国
0.04米
Iceland, 789 Old Kent Road, 伦敦, SE15 1, 英国
0.04米
Divine Connections Worldwide, 801 Old Kent Road, 伦敦, SE15 1NX, 英国
0.04米
The Food Warehouse, 777 Old Kent Road, 伦敦, SE15 1, 英国
0.04米
LIDL, Old Kent Road, 伦敦, SE15 1, 英国
0.04米
ALDI, 840 Old Kent Road, 伦敦, SE15 1, 英国
0.04米
Biff, 41 Dulwich Village, 伦敦, SE21 7BN, 英国
0.00米
Heritage Cheese, 1b Calton Avenue, 伦敦, SE21 7DE, 英国
0.00米
Jigsaw, 43 Dulwich Village, 伦敦, SE21 7BN, 英国
0.00米
Village Books, 1 Calton Avenue, 伦敦, SE21 7DE, 英国
0.00米
Jo Gordon Limited, 7 Druce Road, 伦敦, SE21 7DW, 英国
0.00米
Romeo Jones, 80 Dulwich Village, 伦敦, SE21 7BN, 英国
0.00米
Dulwich Vintners, Boxall Road, 伦敦, SE21 7, 英国
0.00米
Fabulous Interiors, 伦敦, SE21 7BJ, 英国
0.00米
Tomlinsons, 89 Dulwich Village, 伦敦, SE21 7BJ, 英国
0.00米
Oddbins, 91 Dulwich Village, 伦敦, SE21 7BJ, 英国
0.00米
Sharpvision, 11 Playfield Crescent, 伦敦, SE22 8QR, 英国
0.01米
WCJ Management, 11 Playfield Crescent, 伦敦, SE22 8QR, 英国
0.01米
Caltex Jeweler Shop, Woodyard Lane, 伦敦, SE21 7BQ, 英国
0.01米
Stage on Screen, 26 Colwell Road, 伦敦, SE22 8QP, 英国
0.01米
Maggie Bulman Fancy Dress Costumes, 295 Lordship Lane, 伦敦, SE22 8JH, 英国
0.01米
Bloomers, 209 Lordship Lane, 伦敦, SE22 8HB, 英国
0.01米
La Avril Boutique, 207 Lordship Lane, 伦敦, SE22 8HB, 英国
0.01米
Budgens, 127 Half Moon Lane, 伦敦, SE24 9JY, 英国
0.01米
John Noble Newsagent, 127 Half Moon Lane, 伦敦, SE24 9JY, 英国
0.01米
Izdano, 106 Melbourne Grove, 伦敦, SE22 8RR, 英国
0.01米
H&M, 461 Brixton Road, 伦敦, SW9 8, 英国
0.03米
Waistraineruk, Brixton Road, 伦敦, SW9 8, 英国
0.03米
Nomad Vision Limited, 463 Brixton Road, 伦敦, SW9 8HL, 英国
0.03米
Black Gold, Brixton Road, 伦敦, SW9 8, 英国
0.03米
S W 2, 19 Effra Road, 伦敦, SW2 1, 英国
0.03米
The Dyas, 4 Ethnard Road, 伦敦, SE15 1RU, 英国
0.04米
Touch of Grace, 654 Old Kent Road, 伦敦, SE15 1JF, 英国
0.04米
Exchange Clothing, 16 Lynn House, 伦敦, SE15 1RP, 英国
0.04米
Mummy J Fashions, 55 Peckham Park Road, 伦敦, SE15 6TU, 英国
0.03米
Taste Of China Ruislip, Old Kent Road, 伦敦, SE15 1DU, 英国
0.04米
The Food Warehouse, 789 Old Kent Road, 伦敦, SE15 1, 英国
0.04米
LIDL, Old Kent Road, 伦敦, SE15 1NJ, 英国
0.04米
5a Cranmer Road Stockwell 伦敦 SW9 6 英国
0.04米
1-3 Brixton Road Stockwell 伦敦 SW9 6 英国
0.04米
The Empire, 伦敦, SE15 1, 英国
0.04米
Iichild, 伦敦, SE17 3JQ, 英国
0.03米
Alison Price, 5a Cranmer Road, 伦敦, SW9 6, 英国
0.04米
Urban Merchants Limited, 15 Cranmer Road, 伦敦, SW9 6EJ, 英国
0.04米
Grub Box, 58 Colegrove Road, 伦敦, SE15 6NL, 英国
0.03米
Pommecythere Catering Limited, 20 Benhill Road, 伦敦, SE5 7PT, 英国
0.03米
Benjis Kitchen, 27 Notley Street, 伦敦, SE5 7NR, 英国
0.03米
Steel Works Catering Maintenance, 136 Landcroft Road, 伦敦, SE22 9JW, 英国
0.01米
Bytesite Limited, 55 North Cross Road, 伦敦, SE22 9ET, 英国
0.01米
Casa Fireplaces and Stoves Limited, 22 Half Moon Lane, 伦敦, SE24 9JU, 英国
0.01米
Dolce Vita Catering, 173 Friern Road, 伦敦, SE22 0BA, 英国
0.02米
Suzanne James, 11 Barry Road, 伦敦, SE22 0HX, 英国
0.02米
Bubble Bros, 9 Kemerton Road, 伦敦, SE5 9AP, 英国
0.02米
St Mickalos Co, 30 Wanless Road, 伦敦, SE24 0HW, 英国
0.02米
Cooking Crew Limited, 88 Lancaster Avenue, 伦敦, SE27 9EL, 英国
0.02米
London Basque Kitchen, Lordship Lane, 伦敦, SE22 8LB, 英国
0.02米
B Event Management, 115 Grove Park, 伦敦, SE5 8LD, 英国
0.02米
Dainties Cakes and Bakes Limited, 20 Clarewood Walk, 伦敦, SW9 8TX, 英国
0.02米
Pierres, 245a Coldharbour Lane, 伦敦, SW9 8RR, 英国
0.02米
MR Zheng, 208 Coldharbour Lane, 伦敦, SW9 8SA, 英国
0.02米
Chef Danny Ja, Brixton Station Road, 伦敦, SW9 8, 英国
0.03米
Pure Caffe, Brixton Station Road, 伦敦, SW9 8PF, 英国
0.03米
Store, 24 Choumert Road, 伦敦, SE15 4SE, 英国
0.02米
C&A Catering Equipment, 443 Norwood Road, 伦敦, SE27 9DN, 英国
0.02米
The Lane, Bournemouth Close, 伦敦, SE15 4UG, 英国
0.02米
Patsy's Kitchen, 132 Palace Road, 伦敦, SW2 3LD, 英国
0.03米
Live at Pow, 467-469 Brixton Road, 伦敦, SW9 8, 英国
0.03米
La Prima Donna, Coldharbour Lane, 伦敦, SW9 8, 英国
0.03米
Ridwan, 6 Atlantic Road, 伦敦, SW9 8, 英国
0.03米
Dough Hands, 伦敦, SW2 1LT, 英国
0.03米
Misspkitchen, 117 Hillingdon Street, 伦敦, SE17 3UX, 英国
0.03米
Divine Caribbean Cuisine, 4 Elliott Road, 伦敦, SW9 6EB, 英国
0.03米
Pink Popups, Brixton Road, 伦敦, SW9 6BU, 英国
0.04米
Romanafaisal, Meadcroft Road, 伦敦, SE17 3PG, 英国
0.04米
Miriamy Services, 伦敦, SE17 3PJ, 英国
0.03米
Alluvion Services, 4a Asylum Road, 伦敦, SE15 2, 英国
0.04米
The House Of Chakula, Friary Road, 伦敦, SE15 1QT, 英国
0.03米
相关阅读
贷款选择和利率趋势:伦敦买房的关键考虑因素
2024-07-08 13:36:23
英国公寓的投资门槛相较于其他房产类型是高是低?
2024-12-06 16:46:00
海外买房置业涉及的税费种类有哪些?不同国家的税收政策有何差异?
2024-11-14 11:36:39
猜您还想看
参考价£60万镑起
伦敦·Cheyne Residences
111-112 Cheyne Walk & 1-4 Munro Terrace, London, SW10 0DL
参考价£70万镑起
伦敦·The Founding
Dock Office Courtyard, London SE16 2XU
参考价£58.6万镑起
伦敦·万珀汇 One Clapham Junction
St John's Hill, London SW11 1UA
参考价£65万镑起
伦敦·米尔塞德庄园 Millside Grange
Croxley Green Lane, Rickmansworth, WD3 3JJ
免费获取房产资料
提交